thank you
Your email has been sent.
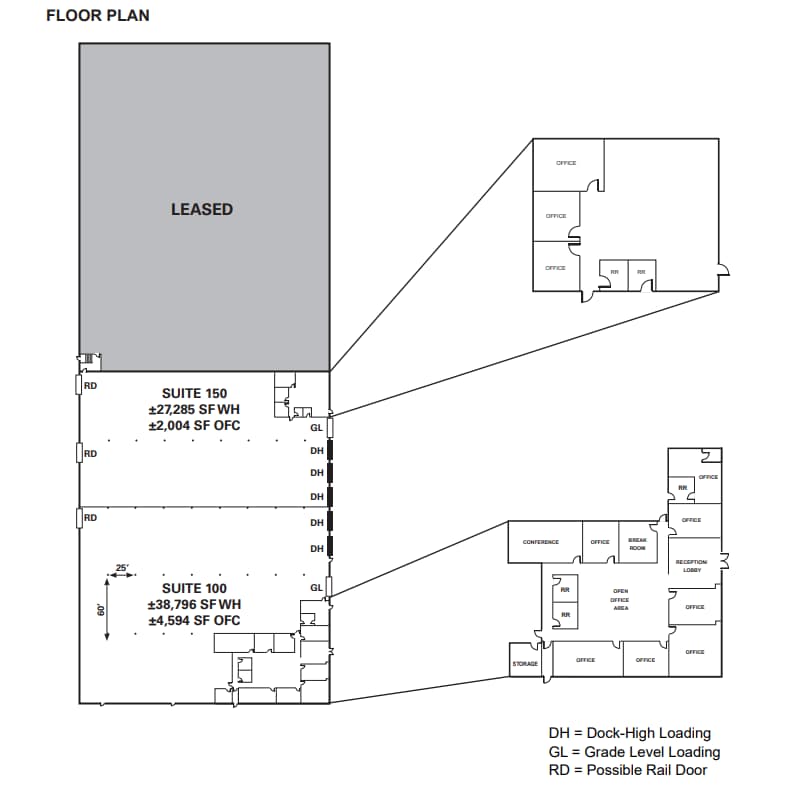
Seaport Industrial Park 3940 Seaport Blvd 27,285 - 66,081 SF of Industrial Space Available in West Sacramento, CA 95691



HIGHLIGHTS
- Skylights in warehouse
- Easy Freeway Access to I-80, I-5, and Highway 50
FEATURES
Clear Height
26’
Column Spacing
60’ x 25’
Drive In Bays
3
Exterior Dock Doors
16
Levelers
6
Standard Parking Spaces
114
ALL AVAILABLE SPACES(2)
Display Rental Rate as
- SPACE
- SIZE
- TERM
- RENTAL RATE
- SPACE USE
- CONDITION
- AVAILABLE
Concrete Loading Apron | Rail Possible
- Lease rate does not include utilities, property expenses or building services
- 1 Drive Bay
- 2 Loading Docks
- Rail Possible
- Includes 4,594 SF of dedicated office space
- Can be combined with additional space(s) for up to 66,081 SF of adjacent space
- Concrete Loading Apron
±27,285 SF Available with ±2,004 SF of Office Space
- Includes 2,004 SF of dedicated office space
- Can be combined with additional space(s) for up to 66,081 SF of adjacent space
- Private Restrooms
- 1 Drive Bay
- 3 Loading Docks
| Space | Size | Term | Rental Rate | Space Use | Condition | Available |
| 1st Floor - 100 | 38,796 SF | 1-10 Years | $8.04 /SF/YR $0.67 /SF/MO $86.54 /m²/YR $7.21 /m²/MO $25,993 /MO $311,920 /YR | Industrial | Full Build-Out | Now |
| 1st Floor - 150 | 27,285 SF | Negotiable | Upon Request Upon Request Upon Request Upon Request Upon Request Upon Request | Industrial | Full Build-Out | Now |
1st Floor - 100
| Size |
| 38,796 SF |
| Term |
| 1-10 Years |
| Rental Rate |
| $8.04 /SF/YR $0.67 /SF/MO $86.54 /m²/YR $7.21 /m²/MO $25,993 /MO $311,920 /YR |
| Space Use |
| Industrial |
| Condition |
| Full Build-Out |
| Available |
| Now |
1st Floor - 150
| Size |
| 27,285 SF |
| Term |
| Negotiable |
| Rental Rate |
| Upon Request Upon Request Upon Request Upon Request Upon Request Upon Request |
| Space Use |
| Industrial |
| Condition |
| Full Build-Out |
| Available |
| Now |
1 of 1
VIDEOS
MATTERPORT 3D EXTERIOR
MATTERPORT 3D TOUR
PHOTOS
STREET VIEW
STREET
MAP
1st Floor - 100
| Size | 38,796 SF |
| Term | 1-10 Years |
| Rental Rate | $8.04 /SF/YR |
| Space Use | Industrial |
| Condition | Full Build-Out |
| Available | Now |
Concrete Loading Apron | Rail Possible
- Lease rate does not include utilities, property expenses or building services
- Includes 4,594 SF of dedicated office space
- 1 Drive Bay
- Can be combined with additional space(s) for up to 66,081 SF of adjacent space
- 2 Loading Docks
- Concrete Loading Apron
- Rail Possible
1 of 1
VIDEOS
MATTERPORT 3D EXTERIOR
MATTERPORT 3D TOUR
PHOTOS
STREET VIEW
STREET
MAP
1st Floor - 150
| Size | 27,285 SF |
| Term | Negotiable |
| Rental Rate | Upon Request |
| Space Use | Industrial |
| Condition | Full Build-Out |
| Available | Now |
±27,285 SF Available with ±2,004 SF of Office Space
- Includes 2,004 SF of dedicated office space
- 1 Drive Bay
- Can be combined with additional space(s) for up to 66,081 SF of adjacent space
- 3 Loading Docks
- Private Restrooms
PROPERTY OVERVIEW
High-image Business Park
DISTRIBUTION FACILITY FACTS
Building Size
131,626 SF
Lot Size
6.20 AC
Year Built
1985
Construction
Reinforced Concrete
Sprinkler System
Wet
Water
City
Sewer
City
Heating
Electric
Gas
Natural
Power Supply
Amps: 1,800 Volts: 208 Phase: 3 Wire: 4
Zoning
M2 - Industrial
1 of 9
VIDEOS
MATTERPORT 3D EXTERIOR
MATTERPORT 3D TOUR
PHOTOS
STREET VIEW
STREET
MAP
Presented by
Seaport Industrial Park | 3940 Seaport Blvd
Hmm, there seems to have been an error sending your message. Please try again.
Thanks! Your message was sent.



